Ahlers Uruguay
  • Inicio
  • Viviendas
  • Transportables
  • Mobiliario encastrable
  • Nosotros
  • Contacto
Seleccionar página

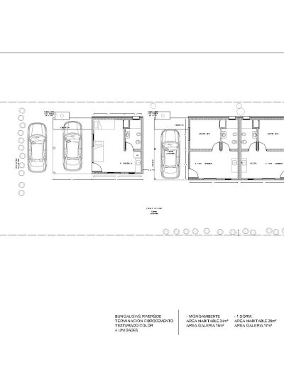
Bungalows Riverside Carmelo

Volver
  • Facebook
  • Instagram
Soca 21, Salto, Uruguay - +598 95 530 545 - viviendasahlers@gmail.com