Inicio
Viviendas
Transportables
Mobiliario encastrable
Nosotros
Contacto
Seleccionar página
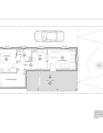
VIVIENDA GM – 22
Volver